Аренда офиса в центре Бреста.

Коммерческая
Брест, Белова, 3
289 $
941 BYN
267 евро
Общая
площадь
43.74
Год
постройки
1937
Этаж
1/1
Характеристики
Район: Брестский
Населенный пункт: Брест
Микрорайон: Центр
Этажность дома: 1
Состояние: Вторичное
Отопление: Другое
Вода: Есть
Канализация: Есть
Тип аренды: Долгосрочная
Описание
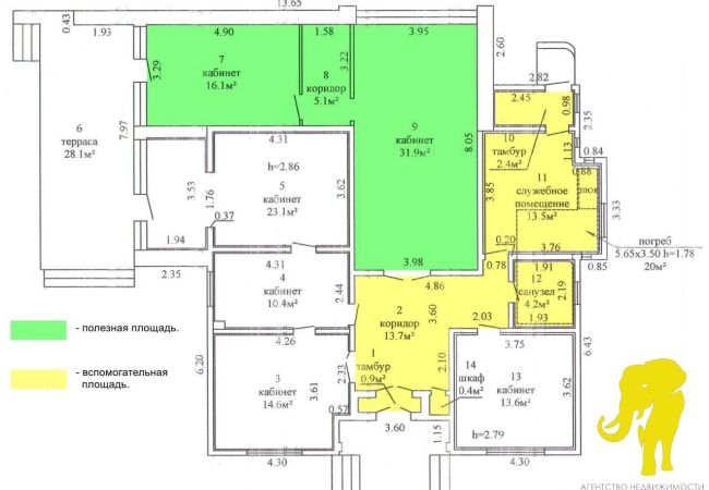
Аренда офисного помещения:

площадь: 43,74 кв.м.
г. Брест, ул.Белова,3

Стоимость: 21,5 рублей за квадратный метр с НДС.

О помещении:
Освещение хорошего качества. Установлен кондиционер. На окнах-решетки и вертикальные жалюзи. Мебель, представленная на фото, остается в пользование арендаторам. Имеется шкаф для документов. Вспомогательное помещение достаточно просторное для оборудования места приема пищи.
Есть возможность выхода на террасу.

Территория огорожена по периметру, вход по чипам. На калитке установлен видеодомофон. На территории имеется парковка для авто арендаторов. Въезд через откатные ворота с электромеханическим приводом.

О локации:
Представленное помещение находится в тихом месте центральной части города за зданием администрации Ленинского района.

Больше объектов на сайте yellowelephant.by и инстаграм @yellow_elephant_estate

ООО «Агентство недвижимости Жёлтый слон». УНП 291724019. Лицензия 02240/429 от 18.11.2021. Договор 5/5а от 18.02.2025
ПОЗВОНИТЬ: +375(29) 8 605-605

Похожая недвижимость

Возможно вам будет интересно

  • Аренда
    3 476 $ 11 333 р
    Этаж
    3
    Площадь
    29.6
  • Аренда
    12 716 $ 41 461 р
    Комнат
    3
    Этаж
    1
    Площадь
    88.4
  • Аренда
    6 032 $ 19 667 р
    Комнат
    1
    Этаж
    1
    Площадь
    42/34.9
  • Аренда
    3 381 $ 11 024 р
    Комнат
    1
    Этаж
    4
    Площадь
    28.8
  • Аренда
    861 $ 2 807 р
    Комнат
    1
    Этаж
    1
    Площадь
    33
  • Аренда
    85 $ 276 р
    Этаж
    3
    Площадь
    273.7
  • Аренда
    42 $ 136 р
    Комнат
    2
    Площадь
    15
  • Аренда
    550 $ 1 793 р
    Комнат
    6
    Площадь
    137.4
  • Аренда
    87 $ 284 р
    Этаж
    2
    Площадь
    29.1

Контактные данные

Свяжитесь с нами удобным для Вас способом

Телефон:

+375 (29) 8 605 605

Время работы:

ПН-ПТ: 10.00-18.00 

СБ: 10.00-14.00

ВС:   выходной 

Адрес:

224030, г. Брест, ул. Советская, 68,
офис 400, 4 этаж

Нужна консультация?

РЕКВИЗИТЫ КОМПАНИИ

ООО "Агентство недвижимости Жёлтый слон"

Лицензия: 02240/429 выд. Минюст. РБ, 18.11.2021г. УНП: 291724019

КОНТАКТЫ

224030, г. Брест, ул. Советская, 68,офис 400, 4 этаж


Разработка сайта Extrit

©2023. Использование материалов сайта только с разрешения правообладателя