Аренда помещения свободного назначения в Кобрине

Коммерческая
Кобрин, Калинина
138 $
450 BYN
128 евро
Комнат
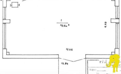
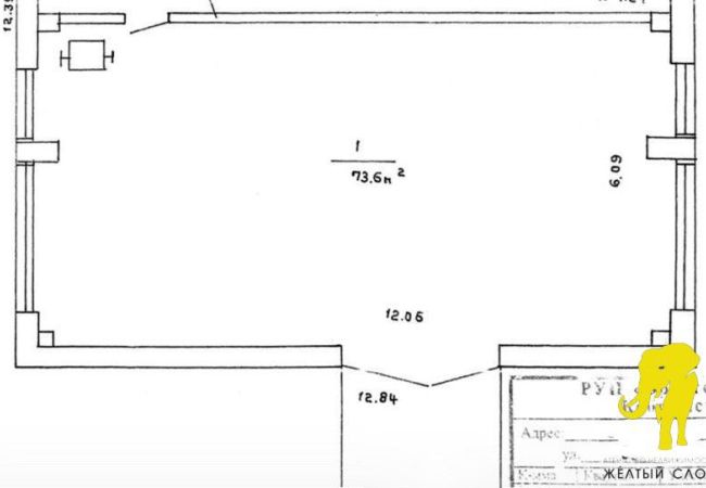
1
Общая
площадь
73.6
Этаж
1/1
Характеристики
Район: Кобринский
Населенный пункт: Кобрин
Этажность дома: 1
Санузел: На улице
Высота потолков: 4.27
Материал стен: Кирпич
Состояние: Вторичное
Тип аренды: Долгосрочная
Описание
Помещение в аренду:
площадь 73,6 кв.м.
г. Кобрин, ул. Калинина

О помещении:
Помещение под производство/автосервис. Высота потолка 4,27. Высота ворот более 3 м. Имеется электричество и отопление. Пол вымощен тротуарной плиткой. Огороженная территория, имеется парковка.

О локации:
Удобный подъезд с улицы Калинина. Близко трасса М1. В шаговой доступности продуктовые магазины, кафе.

Больше объектов на сайте и в нашем инстаграм @yellow_elephant_kobrin

ООО «Агентство недвижимости Жёлтый слон». УНП 291724019 Лицензия № 02240/429 от 18.11.2021г. Договор № 16/3а от 17.12.2025
ПОЗВОНИТЬ: +375(29) 8 605-605

Похожая недвижимость

Возможно вам будет интересно

  • Аренда
    2 361 $ 7 697 р
    Комнат
    1
    Этаж
    4
    Площадь
    20.1
  • Аренда
    4 085 $ 13 321 р
    Комнат
    1
    Этаж
    5
    Площадь
    34.8
  • Аренда
    16 612 $ 54 165 р
    Комнат
    1
    Этаж
    1
    Площадь
    141
  • Аренда
    1 060 $ 3 455 р
    Комнат
    1
    Этаж
    2
    Площадь
    59.1

Контактные данные

Свяжитесь с нами удобным для Вас способом

Телефон:

+375 (29) 8 605 605

Время работы:

ПН-ПТ: 10.00-18.00 

СБ: 10.00-14.00

ВС:   выходной 

Адрес:

224030, г. Брест, ул. Советская, 68,
офис 400, 4 этаж

Нужна консультация?

РЕКВИЗИТЫ КОМПАНИИ

ООО "Агентство недвижимости Жёлтый слон"

Лицензия: 02240/429 выд. Минюст. РБ, 18.11.2021г. УНП: 291724019

КОНТАКТЫ

224030, г. Брест, ул. Советская, 68,офис 400, 4 этаж


Разработка сайта Extrit

©2023. Использование материалов сайта только с разрешения правообладателя