Аренда торговой площади

Коммерческая
Кобрин, Настасича
9 $
29 BYN
8 евро
Общая
площадь
70
Характеристики
Район: Кобринский
Населенный пункт: Кобрин
Этажность дома: 1
Санузел: Совмещенный
Высота потолков: 3
Состояние: Вторичное
Отопление: Центральное
Вода: Есть
Канализация: Есть
Тип аренды: Долгосрочная
Описание
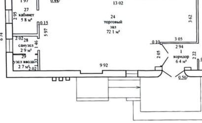
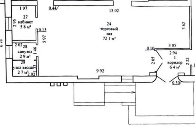
Помещения в аренду:

площадь: от 70 до 140 м2
1 этаж
г. Кобрин, ул. Настасича

Стоимость аренды указана в том числе с НДС!

О помещении:
Просторное торговое помещение с прилегающими складскими помещениями. В торговом помещении высота потолков 3,18 метра. В помещении сейчас идет ремонт. Стены будут окрашены в светлые тона. Ровный пол (керамическая плитка). Потолки Армстронг. Есть вода и канализация. Несколько независимых входов. Имеется заезд с обратной стороны здания. На данном этапе могут быть учтены пожелания по ремонту и планировке помещений!

О здании:
Одноэтажное здание с просторной парковкой

О локации
Востребованный район. Рядом со зданием находится садик, школа, продуктовые и промышленные магазины, кафе, церковь, спортивная площадка. Отличная транспортная доступность

Больше объектов на сайте yellowelephant.by и в нашем инстаграм @yellow_elephant_kobrin

ООО «Агентство недвижимости Жёлтый слон». УНП 291724019 Лицензия № 02240/429 от 18.11.2021г. Договор № 3/3а от 04.04.2025
ПОЗВОНИТЬ: +375(29) 8 605-605

Похожая недвижимость

Возможно вам будет интересно

  • Аренда
    6 440 $ 20 996 р
    Комнат
    1
    Этаж
    2
    Площадь
    90.9
  • Аренда
    208 $ 679 р
    Этаж
    1
    Площадь
    25
  • Аренда
    1 139 $ 3 713 р
    Этаж
    1
    Площадь
    175.3
  • Аренда
    8 $ 27 р
    Комнат
    1
    Этаж
    1
    Площадь
    35
  • Аренда
    1 440 $ 4 695 р
    Комнат
    1
    Этаж
    1
    Площадь
    120
  • Аренда
    141 $ 459 р
    Комнат
    1
    Этаж
    1
    Площадь
    10.15
  • Аренда
    949 $ 3 094 р
    Этаж
    1
    Площадь
    205
  • Аренда
    926 $ 3 019 р
    Комнат
    3
    Этаж
    1
    Площадь
    200
  • Аренда
    232 $ 758 р
    Комнат
    1
    Этаж
    1
    Площадь
    35.9
  • Аренда
    21 $ 69 р
    Комнат
    1
    Этаж
    1
    Площадь
    3.3
  • Аренда
    660 $ 2 152 р
    Комнат
    6
    Площадь
    200
  • Аренда
    69 $ 223 р
    Комнат
    1
    Этаж
    1
    Площадь
    10.6

Контактные данные

Свяжитесь с нами удобным для Вас способом

Телефон:

+375 (29) 8 605 605

Время работы:

ПН-ПТ: 10.00-18.00 

СБ: 10.00-14.00

ВС:   выходной 

Адрес:

224030, г. Брест, ул. Советская, 68,
офис 400, 4 этаж

Нужна консультация?

РЕКВИЗИТЫ КОМПАНИИ

ООО "Агентство недвижимости Жёлтый слон"

Лицензия: 02240/429 выд. Минюст. РБ, 18.11.2021г. УНП: 291724019

КОНТАКТЫ

224030, г. Брест, ул. Советская, 68,офис 400, 4 этаж


Разработка сайта Extrit

©2023. Использование материалов сайта только с разрешения правообладателя