Продажа 2-этажного дома в Кобрине.

Дом
Кобрин, Аэродромная
95 000 $
309 749 BYN
87 963 евро
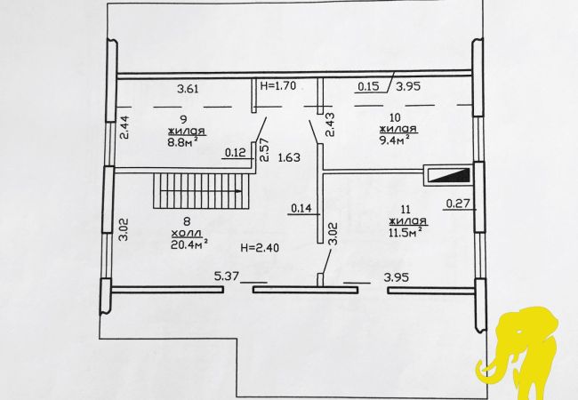
Комнат
4
Общая
площадь
133.2
Жилая
площадь
48.7
Площадь
кухни
18.7
Год
постройки
2010
Характеристики
Район: Кобринский
Населенный пункт: Кобрин
Этажность дома: 2
Санузел: Раздельный
Высота потолков: 2.7
Материал стен: Блоки
Состояние: Вторичное
Материал крыши: Другое
Отопление: Газовое
Вода: Центральное
Канализация: Местная
Газоснабжение: Центральное
Постройки: Баня, Хоз. постройки, Гараж
Описание
Продается дом:

4 комнаты
площадь: 133,2/ 48,7/18,7 кв.м.
2 этажный дом 2010 года постройки
г. Кобрин, ул. Аэродромная

О доме:
Дом 2010 года постройки. Фундамент - бетон. Стены - блок, утепленный пенопластом. Нанесена декоративная штукатурка. Крыша-ондулин. Окна ПВХ. Входная дверь металлическая. В доме расположены: 4 жилые комнаты, просторная кухня с выходом на будущую террасу, раздельный санузел, топочная, кладовая. В доме сделан ремонт: на стенах обои и декоративная штукатурка, напольное покрытие - ламинат, в прихожей и санузле плитка (оборудован теплый пол).
Имеется также баня (проведен газ, есть вода) и просторный гараж.
При продаже остается бОльшая часть мебели и техники (кухонный гарнитур, мягкая и корпусная мебель и прочее)!

Об участке:
Участок - 0,1359 га. Ровный, правильной прямоугольной формы. Огорожен со всех сторон. На участке высажены декоративные растения, выкопан пруд.

О локации:
Дом расположен в молодом районе частной застройки вдали от шумных дорог. Рядом продуктовые магазины, остановки общественного транспорта, школа, садик.

Больше объектов на сайте yellowelephant.by и в нашем инстаграм @yellow_elephant_kobrin

ООО «Агентство недвижимости Жёлтый слон». УНП 291724019 Лицензия № 02240/429 от 18.11.2021г. Договор № 44/3 от 27.06.2025
ПОЗВОНИТЬ: +375(29) 8 605-605

Похожая недвижимость

Возможно вам будет интересно

  • Продажа
    23 000 $ 74 992 р
    Комнат
    4
    Этаж
    1
    Площадь
    65.41/52.33/5.69
  • Продажа
    15 500 $ 50 538 р
    Комнат
    4
    Этаж
    1
    Площадь
    112.7/61.7/18.5
  • Продажа
    50 000 $ 163 026 р
    Комнат
    4
    Площадь
    117.5/63.2/12.13
  • Продажа
    33 000 $ 107 597 р
    Комнат
    4
    Этаж
    1
    Площадь
    68.6/48.9/6.44
  • Продажа
    47 000 $ 153 244 р
    Комнат
    4
    Площадь
    101.9/65/13.4
  • Продажа
    92 000 $ 299 967 р
    Комнат
    4
    Площадь
    117/18.1
  • Продажа
    105 000 $ 342 354 р
    Комнат
    4
    Площадь
    153.6/91/13.2
  • Продажа
    48 500 $ 158 135 р
    Комнат
    4
    Этаж
    1
    Площадь
    78.9/54.5/10.6
  • Продажа
    10 000 $ 32 605 р
    Комнат
    4
    Этаж
    1
    Площадь
    65.4/50.5
  • Продажа
    39 500 $ 128 790 р
    Комнат
    4
    Площадь
    150.7/69/22.7
  • Продажа
    65 000 $ 211 933 р
    Комнат
    4
    Этаж
    1
    Площадь
    215.9/70.6/25.6
  • Продажа
    183 000 $ 596 674 р
    Комнат
    4
    Этаж
    1
    Площадь
    150.9/78.5/26.2
  • Продажа
    29 900 $ 97 489 р
    Комнат
    4
    Этаж
    1
    Площадь
    139.8/66/20.2

Контактные данные

Свяжитесь с нами удобным для Вас способом

Телефон:

+375 (29) 8 605 605

Время работы:

ПН-ПТ: 10.00-18.00 

СБ: 10.00-14.00

ВС:   выходной 

Адрес:

224030, г. Брест, ул. Советская, 68,
офис 400, 4 этаж

Нужна консультация?

РЕКВИЗИТЫ КОМПАНИИ

ООО "Агентство недвижимости Жёлтый слон"

Лицензия: 02240/429 выд. Минюст. РБ, 18.11.2021г. УНП: 291724019

КОНТАКТЫ

224030, г. Брест, ул. Советская, 68,офис 400, 4 этаж


Разработка сайта Extrit

©2023. Использование материалов сайта только с разрешения правообладателя