Продажа дома в Кобринском районе.

Дом
Кобрин
83 500 $
272 253 BYN
77 315 евро
Комнат
3
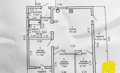
Общая
площадь
77.1
Жилая
площадь
25.6
Площадь
кухни
33.1
Характеристики
Район: Кобринский
Населенный пункт: Кобрин
Этажность дома: 1
Год капитального ремонта: 2021
Санузел: Совмещенный
Материал стен: Дерево
Состояние: Вторичное
Материал крыши: Другое
Отопление: Газовое
Вода: Центральное
Канализация: Местная
Газоснабжение: Центральное
Постройки: Летняя кухня, Гостевой дом, Хоз. постройки
Описание
Продается дом:

3 комнаты
площадь: 71,1/25,6/33,1 кв.м.
1 этажный дом после недавней реконструкции
Кобринский район

О доме:
Деревянный дом 1940 года постройки, был полностью реконструирован в 2021 году. Был перезалит фундамент, оставлен только крепкий брус, который был надлежащим образом обработан для долговечной службы. Крыша покрыта металлом (фальцевая). Заменена проводка и сантехническое оборудование. Установлен современный котел для обогрева. Входные двери из металла. Окна ПВХ со шпросами. В доме три выхода, два из которых на террасы. Ремонт выполнен в светлых тонах из экологичных строительных материалов. Стены отделаны деревом - имитацией бруса. На потолках также дерево. В доме очень легко дышится! На полу заливалась стяжка, оборудованы водяные теплые полы. Пол покрыт керамической плиткой и ламинатом премиум качества. В гостиной - кухне сохранена печь. Дом очень энергоэффективный, осенью для обогрева может быть использован теплый пол и печь. При продаже остается почти вся мебель и техника. Кухонный гарнитур из массива дерева

Экологичный дом для ценителей комфорта и уединенной жизни!

Об участке:
Участок - 0,25 га под домом и 0,35 га в ЛПХ. Высажены декоративные растения, плодовые деревья. На участке также есть гараж, погреб, сараи и летняя кухня, оборудованная санузлом и центральным газоснабжением ( по сути гостевой домик). Участок находится вдали от других домов в очень тихом уединенном месте.

О локации:
Дом находится в агрогородке в 6 км от Кобрина. Рядом остановки общественного транспорта. В шаговой доступности продуктовые магазины, школа, детский сад, церковь, ФАП.

Больше объектов на сайте yellowelephant.by и в нашем инстаграм @yellow_elephant_kobrin

ООО «Агентство недвижимости Жёлтый слон». УНП 291724019 Лицензия № 02240/429 от 18.11.2021г. Договор № 53/3 от 02.09.2025
ПОЗВОНИТЬ: +375(29) 8 605-605

Похожая недвижимость

Возможно вам будет интересно

  • Продажа
    60 000 $ 195 631 р
    Комнат
    3
    Площадь
    192.4/133.5
  • Продажа
    60 000 $ 195 631 р
    Комнат
    3
    Этаж
    1
    Площадь
    127.1/54.85/11.7
  • Продажа
    15 000 $ 48 908 р
    Комнат
    3
    Площадь
    95.6/54.8/14.7
  • Продажа
    49 900 $ 162 700 р
    Комнат
    3
    Площадь
    91
  • Продажа
    41 500 $ 135 311 р
    Комнат
    3
    Площадь
    61.3/44.7/11.2
  • Продажа
    198 000 $ 645 582 р
    Комнат
    3
    Этаж
    2
    Площадь
    121.9/48.7/26.5
  • Продажа
    47 000 $ 153 244 р
    Комнат
    3
    Площадь
    122/37/41
  • Продажа
    15 000 $ 48 908 р
    Комнат
    3
    Этаж
    1
    Площадь
    56.6/44.4
  • Продажа
    69 900 $ 227 910 р
    Комнат
    3
    Этаж
    1
    Площадь
    122.7/64/17
  • Продажа
    28 900 $ 94 229 р
    Комнат
    3
    Этаж
    1
    Площадь
    52/38/14
  • Продажа
    24 900 $ 81 187 р
    Комнат
    3
    Этаж
    1
    Площадь
    68.7/43.6/11.9
  • Продажа
    168 000 $ 547 767 р
    Комнат
    3
    Этаж
    1
    Площадь
    121/39.31/39.1
  • Продажа
    75 000 $ 244 539 р
    Комнат
    3
    Этаж
    1
    Площадь
    102.8/50.5/16.6
  • Продажа
    55 000 $ 179 328 р
    Комнат
    3
    Этаж
    1
    Площадь
    105.7/61.8/14.4

Контактные данные

Свяжитесь с нами удобным для Вас способом

Телефон:

+375 (29) 8 605 605

Время работы:

ПН-ПТ: 10.00-18.00 

СБ: 10.00-14.00

ВС:   выходной 

Адрес:

224030, г. Брест, ул. Советская, 68,
офис 400, 4 этаж

Нужна консультация?

РЕКВИЗИТЫ КОМПАНИИ

ООО "Агентство недвижимости Жёлтый слон"

Лицензия: 02240/429 выд. Минюст. РБ, 18.11.2021г. УНП: 291724019

КОНТАКТЫ

224030, г. Брест, ул. Советская, 68,офис 400, 4 этаж


Разработка сайта Extrit

©2023. Использование материалов сайта только с разрешения правообладателя