Продажа 1-комнатной квартиры в Минске

Квартира
Минск, Маршала Лосика, 57
99 000 $
322 791 BYN
91 667 евро
Комнат
1
Общая
площадь
43.9
Жилая
площадь
11.8
Площадь
кухни
20.8
Год
постройки
2024
Этаж
3/12
Характеристики
Район: Минский
Населенный пункт: Минск
Микрорайон: Сухарево
Этажность дома: 12
Санузел: Совмещенный
Балкон: Лоджия застекленная
Высота потолков: 2.7
Ремонт: С отделкой
Материал стен: Блоки
Состояние: Вторичное
Отопление: Центральное
Вода: Центральное
Канализация: Центральная
Газоснабжение: Центральное
Описание
Продается квартира:
1 комнатная
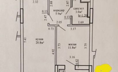
Площадь: 43,9/42,1/11,8/20,8 кв. м.
3/12 монолитного дома 2024 года постройки
г. Минск, ул. Маршала Лосика, 57

О квартире:
Продается уютная однокомнатная квартира в современном жилом комплексе комфорт класса "Вершина" в городе Минске.
В квартире сделан ремонт в светлых тонах.
Квартира отлично подходит как для собственного проживания, так и для инвестиций с целью последующей аренды.

О доме:

Монолитный дом 2024 года постройки. Жилой комплекс выполнен в европейском стиле с ухоженными подъездами и благоустроенной закрытой домовой территорией. Установлено видеонаблюдение.
IP домофоны
Площадка для workout
Ландшафтный дизайн
Современная красивая детская площадка и спортивные тренажеры
Зона отдыха во дворе
Паркинг и наземная стоянка для автомобилей
Двор безопасен и находится под круглосуточным наблюдением

О локации:

ЖК "Вершина" находится в локации между Малиновкой и Каменной горкой. Отличное транспортное сообщение: рядом с домом остановка общественного транспорта, удобный выезд на МКАД.
Район с отличным потенциалом развития: активно формируется инфраструктура и транспортная доступность. В шаговой доступности планируется строительство детского сада и школы.
ЖК "Вершина" - прекрасное место для комфортной жизни.

Больше объектов на сайте yellowelephant.by и инстаграм @yellow_elephant_estate

ООО «Агентство недвижимости Жёлтый слон». УНП 291724019. Лицензия 02240/429 от 18.11.2021. Договор 20/5 от 17.03.2026
ПОЗВОНИТЬ: +375(29) 8 605-605

Похожая недвижимость

Возможно вам будет интересно

  • Продажа
    44 500 $ 145 093 р
    Комнат
    1
    Этаж
    2
    Площадь
    37.1/17/7.5
  • Продажа
    87 000 $ 283 665 р
    Комнат
    1
    Этаж
    9
    Площадь
    37.9/30.3
  • Продажа
    32 000 $ 104 336 р
    Комнат
    1
    Этаж
    1
    Площадь
    55/19.5/10.9
  • Продажа
    46 200 $ 150 636 р
    Комнат
    1
    Этаж
    4
    Площадь
    40.2/19.7/7.2
  • Продажа
    29 000 $ 94 555 р
    Комнат
    1
    Этаж
    4
    Площадь
    27.9/16.2/4.9
  • Продажа
    24 000 $ 78 252 р
    Комнат
    1
    Этаж
    4
    Площадь
    36.9/19.3/9.2

Контактные данные

Свяжитесь с нами удобным для Вас способом

Телефон:

+375 (29) 8 605 605

Время работы:

ПН-ПТ: 10.00-18.00 

СБ: 10.00-14.00

ВС:   выходной 

Адрес:

224030, г. Брест, ул. Советская, 68,
офис 400, 4 этаж

Нужна консультация?

РЕКВИЗИТЫ КОМПАНИИ

ООО "Агентство недвижимости Жёлтый слон"

Лицензия: 02240/429 выд. Минюст. РБ, 18.11.2021г. УНП: 291724019

КОНТАКТЫ

224030, г. Брест, ул. Советская, 68,офис 400, 4 этаж


Разработка сайта Extrit

©2023. Использование материалов сайта только с разрешения правообладателя