Продажа 3-комнатной квартиры в Бресте.

Квартира
Брест, Московская
79 000 $
257 581 BYN
73 148 евро
Комнат
3
Общая
площадь
74.6
Жилая
площадь
40.7
Площадь
кухни
9.5
Год
постройки
1975
Этаж
1/9
Характеристики
Район: Брестский
Населенный пункт: Брест
Этажность дома: 9
Санузел: Раздельный
Балкон: Лоджия застекленная
Высота потолков: 2.48
Ремонт: Хороший
Материал стен: Панель
Состояние: Вторичное
Описание
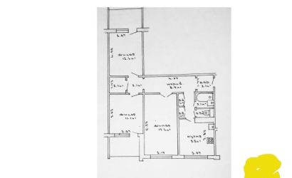
Продается квартира:

3 комнаты
площадь: 74,6/40,7/9,5 кв.м.
1/9 панельного дома 1975 года постройки
г. Брест, ул. Московская

О квартире:
В продаже просторная квартира в районе Восток. Отличный вариант- заезжай и живи! Во всей квартире залита стяжка, на полах кварц винил в отличном состоянии и линолеум в спальнях. в кухне - теплый пол. Потолки "Снежка", в коридоре натяжной. Все окна ПВХ, выходят на 2 стороны. Вся квартира утеплена. 2 застекленные лоджии, в одной из них собственный подвал. Также имеется кладовка, переоборудованная под гардеробную. Раздельный санузел.
При продаже остаются: кухонный гарнитур, встроенный шкаф в прихожей, шкаф-купе в комнате, спальня, компьютерный стол.

О доме:
Панельный дом 1975 года постройки. Двор тихий, много зелени, есть парковка. Хорошие соседи.

О локации:
В шаговой доступности школы, сады, магазины, банк, аптека, остановки общественного транспорта, оборудованный парк, торгово-развлекательный центр "Экватор".

Звоните прямо сейчас, завтра Вам могут ответить "ПРОДАНО"!

Больше объектов на сайте yellowelephant.by и инстаграм @yellow_elephant_estate

ООО «Агентство недвижимости Жёлтый слон». УНП 291724019 Лицензия № 02240/429 от 18.11.2021. Договор № 101/5 от 25.09.2025
ПОЗВОНИТЬ: +375(29) 8 605-605

Похожая недвижимость

Возможно вам будет интересно

  • Продажа
    89 000 $ 290 186 р
    Комнат
    3
    Этаж
    8
    Площадь
    73.3/40.4/9.2
  • Продажа
    105 000 $ 342 354 р
    Комнат
    3
    Этаж
    1
    Площадь
    73.9/39.3/9.1
  • Продажа
    53 000 $ 172 807 р
    Комнат
    3
    Этаж
    5
    Площадь
    80/45.9/8.9
  • Продажа
    103 000 $ 335 833 р
    Комнат
    3
    Этаж
    4
    Площадь
    68.3/40/10.1
  • Продажа
    28 000 $ 91 294 р
    Комнат
    3
    Этаж
    5
    Площадь
    50.2/35.5/5.7
  • Продажа
    83 000 $ 270 623 р
    Комнат
    3
    Этаж
    5
    Площадь
    69.7/40.5/9.6
  • Продажа
    99 000 $ 322 791 р
    Комнат
    3
    Этаж
    10
    Площадь
    74.1/41.8/9.3
  • Продажа
    45 000 $ 146 723 р
    Комнат
    3
    Этаж
    1
    Площадь
    102.8/54.9/15.6
  • Продажа
    81 000 $ 264 102 р
    Комнат
    3
    Этаж
    6
    Площадь
    84.9/48.4/13.2
  • Продажа
    75 000 $ 244 539 р
    Комнат
    3
    Этаж
    2
    Площадь
    66.7/37.9/8.5
  • Продажа
    174 900 $ 570 264 р
    Комнат
    3
    Этаж
    1
    Площадь
    78.9/51.2/9.59
  • Продажа
    69 900 $ 227 910 р
    Комнат
    3
    Этаж
    3
    Площадь
    66.7/41.7/9.3
  • Продажа
    59 000 $ 192 370 р
    Комнат
    3
    Этаж
    4
    Площадь
    61.1/46/5.4
  • Продажа
    55 000 $ 179 328 р
    Комнат
    3
    Этаж
    1
    Площадь
    49.9/27.1/7.3

Контактные данные

Свяжитесь с нами удобным для Вас способом

Телефон:

+375 (29) 8 605 605

Время работы:

ПН-ПТ: 10.00-18.00 

СБ: 10.00-14.00

ВС:   выходной 

Адрес:

224030, г. Брест, ул. Советская, 68,
офис 400, 4 этаж

Нужна консультация?

РЕКВИЗИТЫ КОМПАНИИ

ООО "Агентство недвижимости Жёлтый слон"

Лицензия: 02240/429 выд. Минюст. РБ, 18.11.2021г. УНП: 291724019

КОНТАКТЫ

224030, г. Брест, ул. Советская, 68,офис 400, 4 этаж


Разработка сайта Extrit

©2023. Использование материалов сайта только с разрешения правообладателя