Продажа 3-комнатной квартиры в Бресте

Квартира
Брест, Адамковская
62 000 $
202 152 BYN
57 407 евро
Комнат
3
Общая
площадь
68.4
Жилая
площадь
38.6
Площадь
кухни
8.8
Год
постройки
1997
Этаж
5/9
Характеристики
Район: Брестский
Населенный пункт: Брест
Микрорайон: Речица
Этажность дома: 9
Санузел: Раздельный
Балкон: Лоджия застекленная
Высота потолков: 2.5
Ремонт: Косметический
Материал стен: Кирпич
Состояние: Вторичное
Описание
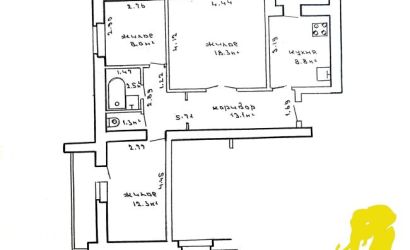
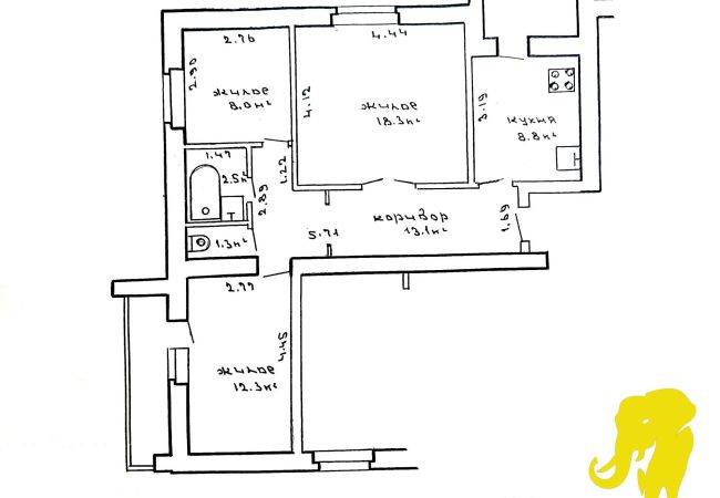
Продается трёхкомнатная квартира в Бресте (Речица):
3 комнаты
площадь: 68,4/64,3/38,6/8,8 кв.м.
5/9 кирпичного дома 1997 года постройки
г. Брест, ул. Адамковская

О квартире:
Продается трёхкомнатная квартира на Речице в Бресте. Общая площадь квартиры – 68,4, жилая – 38,6, кухня – 8,8 метров квадратных. Санузел раздельный. Две застеклённых лоджии (одна – из кухни, вторая – из комнаты). Окна – ПВХ, балконные группы деревянные. Полы – деревянная доска. Потолки – частично оклеены потолочной плиткой и обоями, частично окрашены. Стены оклеены обоями, в санузле и на кухне – керамическая плитка.
Приятным бонусом для будущего владельца будет наличие сухого подвала и большой детской площадки во дворе.

О доме:
Девятиэтажный, кирпичный дом 1997 года постройки. Аккуратный, чистый подъезд.

О локации:
Рядом есть абсолютно всё для комфортного проживания: д\сады, школы, гимназия, магазины, аптеки, почтовое отделение, пиццерия. Развитый, обжитой, зелёный район города, хорошее транспортное сообщение.
Звоните прямо сейчас, не упустите отличное предложение!
Больше объектов на сайте yellowelephant.by и инстаграм @yellow_elephant_estate
Получить подробную информацию и договориться о просмотре можно по телефону

ООО «Агентство недвижимости Жёлтый слон». УНП 291724019. Лицензия 02240/429 от 18.11.2021. Договор 125/5 от 05.12.2025
ПОЗВОНИТЬ: +375(29) 8 605-605

Похожая недвижимость

Возможно вам будет интересно

  • Продажа
    81 000 $ 264 102 р
    Комнат
    3
    Этаж
    6
    Площадь
    84.9/48.4/13.2
  • Продажа
    7 600 $ 24 780 р
    Комнат
    3
    Этаж
    1
    Площадь
    66.6/41.9/8.5
  • Продажа
    45 000 $ 146 723 р
    Комнат
    3
    Этаж
    1
    Площадь
    63.8/40/7.5
  • Продажа
    73 000 $ 238 018 р
    Комнат
    3
    Этаж
    2
    Площадь
    66.7/37.9/8.5
  • Продажа
    125 000 $ 407 564 р
    Комнат
    3
    Этаж
    11
    Площадь
    80.8/43.2/11.8
  • Продажа
    36 500 $ 119 009 р
    Комнат
    3
    Этаж
    3
    Площадь
    63/43.4/9.1
  • Продажа
    87 000 $ 283 665 р
    Комнат
    3
    Этаж
    3
    Площадь
    71.1/40.5/7.8
  • Продажа
    56 000 $ 182 589 р
    Комнат
    3
    Этаж
    4
    Площадь
    49.7/27.6/7.5
  • Продажа
    174 900 $ 570 264 р
    Комнат
    3
    Этаж
    1
    Площадь
    78.9/51.2/9.59
  • Продажа
    26 000 $ 84 773 р
    Комнат
    3
    Площадь
    52.3/37/9.59
  • Продажа
    74 900 $ 244 213 р
    Комнат
    3
    Этаж
    1
    Площадь
    74.6/40.7/9.5
  • Продажа
    69 900 $ 227 910 р
    Комнат
    3
    Этаж
    3
    Площадь
    66.7/41.7/9.3
  • Продажа
    49 500 $ 161 396 р
    Комнат
    3
    Этаж
    4
    Площадь
    61.1/46/5.4
  • Продажа
    43 000 $ 140 202 р
    Комнат
    3
    Этаж
    5
    Площадь
    62.4/38.3/7.4

Контактные данные

Свяжитесь с нами удобным для Вас способом

Телефон:

+375 (29) 8 605 605

Время работы:

ПН-ПТ: 10.00-18.00 

СБ: 10.00-14.00

ВС:   выходной 

Адрес:

224030, г. Брест, ул. Советская, 68,
офис 400, 4 этаж

Нужна консультация?

РЕКВИЗИТЫ КОМПАНИИ

ООО "Агентство недвижимости Жёлтый слон"

Лицензия: 02240/429 выд. Минюст. РБ, 18.11.2021г. УНП: 291724019

КОНТАКТЫ

224030, г. Брест, ул. Советская, 68,офис 400, 4 этаж


Разработка сайта Extrit

©2023. Использование материалов сайта только с разрешения правообладателя